Płyty cementowo-wiórowe ArmoPlit® to wielofunkcyjny materiał budowlany, łączący w sobie wytrzymałość i trwałość betonu z lekkością drewna.
ArmoPlit® produkowany jest poprzez łączenie specjalnej mieszaniny technologicznej cementu portlandzkiego, wody, zrębków drzewnych i dodatków hydrofobowych. ArmoPlit® ze względu na swoją trwałość, wysokie właściwości mechaniczne i technologiczne doskonale sprawdza się w konstrukcjach dachowych jako optymalny zamiennik wylewki cementowo-piaskowej, przy wykonywaniu attyk i innych połączeń. Zastosowanie jastrychów prefabrykowanych (suchych) znacznie skraca czas zakończenia prac budowlanych, ponieważ beton nie wymaga czasu na stwardnienie i wyschnięcie.
ZALETY PŁYTY CEMENTOWO-WŁÓKNISTEJ
Ognioodporny
Materiał jest niepalny. W kontakcie z ogniem nie wytwarza dymu ani nie uwalnia szkodliwych dla środowiska oparów i gazów.
Odporność na wilgoć
Wysoka odporność na agresywne oddziaływania środowiska. Przy prawidłowym montażu materiał, który jest mechanicznie przymocowany do konstrukcji, nie ulega wpływowi deszczu, śniegu ani zmian temperatury.
Bezpieczeństwo dla środowiska
Nie zawiera substancji szkodliwych i toksycznych.
Biostabilność
Proces produkcji ArmoPlit® tworzy środowisko alkaliczne, które zapobiega pojawianiu się pleśni i grzybów.
Wysoka wytrzymałość i trwałość
Testowany i posiada odpowiednie certyfikaty.
Uniwersalna podstawa dla materiałów wykończeniowych
Gwarantowana trwałość użytkowa - 50 lat.
SKŁAD PŁYTY CEMENTOWO-WŁÓKNISTEJ
OBSZARY ZASTOSOWANIA
Płyty o grubości 10, 12, 16 mm są stosowane jako zewnętrzne i wewnętrzne okładziny ścian na konstrukcji szkieletowej, zamontowanej z drewnianych desek lub metalowych profili. Płyty cementowo-włókniste są mocowane specjalnymi gwoźdźmi kotwicznymi lub wkrętami samogwintującymi w wcześniej nawiercone otwory lub uniwersalnymi wkrętami ESSVE CUTTERS bez wcześniejszego wiercenia.
Budowa przegród i sufitów z płyt cementowo-włóknistych na stalowej lub drewnianej konstrukcji pozwala uniknąć mokrych procesów, zapewnia funkcjonalną skuteczność ochrony przeciwpożarowej konstrukcji budowlanych i gwarantuje nie tylko czystość środowiska, ale także korzystny mikroklimat w pomieszczeniu.
Płyty cementowo-włókniste w płaskich dachach są stosowane jako montowalna wylewka, zastępująca wylewkę betonową.
Płyty o grubości 10-12 mm układa się w dwóch warstwach w układzie szachownicy, co pozwala osiągnąć minimalną grubość i wagę wylewki dachowej oraz znacznie skrócić czas trwania cyklu budowlanego.
Płyty o grubości 12, 16, 20 i 24 mm mogą być stosowane jako ruchomy lub nieruchomy szalunek dla fundamentów i ścian budynków.
Budowa szalunku z płyt cementowo-włóknistych znacznie obniża koszty pracy, przyspieszając proces budowy konstrukcji.
Posadzki z płyt cementowo-włóknistych układa się na podłożu o minimalnym przekroju 50×80 mm.
Przestrzeń między podstawą a okładziną wypełnia się izolacją termiczną lub pozostawia pustą. Ponadto płyty są doskonałym zamiennikiem wylewki cementowo-piaskowej.
Płyty cementowo-włókniste są idealne do każdego nowoczesnego wnętrza. Pod względem właściwości płyty są mocniejsze i bardziej trwałe niż ich drewniane odpowiedniki.
Płyty cementowo-włókniste mają następujące zalety:
- Stabilność wymiarów geometrycznych
- Gładka, twarda powierzchnia
- Brak spoin i szwów
Przed montażem deski należy zagruntować z każdej strony.
MONTAŻ PŁYT CEMENTOWO-WŁÓKNISTYCH
Podczas montażu zaleca się cięcie płyt cementowo-włóknistych narzędziami z ostrzami z twardych stopów. Aby krawędzie cięcia wyglądały perfekcyjnie, wypukłość ostrza piły na dolnej powierzchni powinna być minimalna.
Do uzyskania wysokiej jakości obrobionej powierzchni płyt z wiórów drzewnych związanych z cementem, używa się narzędzi tnących wykonanych z twardych stopów lub z tarczami diamentowymi.
Szlifowanie narusza górną, delikatną warstwę powłoki, co prowadzi do otwarcia struktury płyty, zwiększenia pochłaniania wody oraz pogorszenia właściwości fizycznych i mechanicznych.
Po zakończeniu montażu deski należy zagruntować, aby ustabilizować powierzchnię i zmniejszyć higroskopijność.
Cięte
Ręczne piły tarczowe i ręczne maszyny szlifierskie
Średnica tarczy 190-250 mm z liczbą zębów 49-72 dla płyt o grubości od 10 do 12 mm oraz 36-60 dla płyt o grubości powyżej 12 mm. Prędkość tarczy wynosi od 3 do 5 tysięcy obrotów na minutę. Szlifierki kątowe mogą być używane do cięcia małych fragmentów płyt z wiórów drzewnych związanych z cementem. Aby uzyskać gładką krawędź, tarcza tnąca powinna wystawać nad dolną powierzchnię płyty na jak najmniejszą odległość.
Płyty tnie się od strony odwrotnej, aby chronić stronę wierzchnią przed uszkodzeniami.
Szlifierki kątowe mogą być używane do cięcia małych fragmentów płyt cementowych z wiórów drzewnych.
Piły elektryczne i piły mogą być używane do zaokrąglania krawędzi i wycinania otworów profilowych w płytach wiórowych:
– Piły do elektrycznej piły jigsaw PRACTIKA T341NM
– Piły do elektrycznej piły jigsaw PRACTIKA 644-375
Wiercenie otworów
Do wiercenia otworów w płytach wiórowych połączonych z cementem należy używać wiertarek sieciowych lub akumulatorowych.
Zalecana prędkość obrotowa to 2800-3000 obr./min.
Do użytku ciągłego zaleca się wiertła z twardospawalną płytką skrawającą.
Frezowanie
Do frezowania płyt wiórowych używa się ręcznych frezów elektrycznych z frezami końcowymi, wyposażonymi w wkładki z węglika spiekanego.
Zalecana prędkość narzędzia tnącego wynosi 25-35 metrów na sekundę (im wyższa prędkość narzędzia tnącego, tym czystsza krawędź frezowania).
Szlifowanie
Podczas montażu płyt mogą pojawić się nierówności w spoinach, które należy usunąć poprzez szlifowanie.
Do tego celu używa się ręcznych szlifierek wibracyjnych, mimośrodowych (orbitalnych) lub taśmowych.
Wielkość ziaren materiału ściernego powinna mieścić się w przedziale od 40 do 80 ziaren.
Farby powinny zawierać pigmenty odporne na środowisko alkaliczne. Niestabilne pigmenty mogą prowadzić do zmian odcieni kolorów.
Do tapetowania płyt cementowo-włóknowych należy używać tapet z wełny, winylu lub szkła.
Płyty cementowo-włóknowe mogą być sklejane ze sobą i z innymi materiałami.
Fugi dylatacyjne wypełnia się elastycznymi uszczelniaczami na bazie żywic akrylowych i poliuretanów.
Uszczelniacze silikonowe nie są stosowane do płyt cementowo-włóknowych.
Malowanie
Najczęściej stosowaną metodą wykończenia powierzchni płyt cementowo-włóknowych jest malowanie z utworzeniem kompensacyjnych szczelin między płytami (szczeliny otwarte).
Przed nałożeniem farby na powierzchnię płyt cementowo-włóknowych należy:
- wkręcić wszystkie wkręty na 1-2 mm w płytę;
- oczyścić powierzchnię płyt z zanieczyszczeń i odpylić;
- w przypadku plam tłuszczu lub oleju należy je odtłuścić;
- wypełnić wszystkie zagłębienia i odpryski szpachlówką do elewacji;
- po całkowitym wyschnięciu szpachlówki, wygładzić szpachlowane miejsca;
- oczyścić i zagruntować stronę czołową i krawędzie płyt cementowo-włóknowych (stabilizuje powierzchnię, zmniejsza higroskopijność);
- przeprowadzić malowanie płyt.
Zalecane materiały malarskie do wykończenia elewacji płyt cementowo-włóknowych (CSP).
Producent | Grunt | Farba |
| Caparol | Disbon 481 | Caparol Thermo San NQG |
| Tiefgrund TB | Amphibolin | |
| CapaSol LF | Caparol Acryl – Fassadenfarbe | |
| Caparol Sylitol 111 Konzentra | Silitol-Fin | |
| MAPEI | Malech/ Elastocolor Primer | Elastocolor |
| ZAO “PK LAES” | Nie jest wymagane stosowanie podkładu | Farba WDAK-18 |
| ZAO «PIGMENT» | WD-AK-035 | WD-AK-117 |
Wypełnianie szczelin dylatacyjnych
Podstawową zasadą działania szczeliny dylatacyjnej jest wyeliminowanie trójstronnego przylegania w szczelinie, co prowadzi do nierównomiernego obciążenia elastycznego wypełniacza, a w konsekwencji do jego odrywania od krawędzi płyt cementowo-drzazgowych (CSP).
W tym celu stosuje się wkładki z taśmy polietylenowej lub sznura z pianki polietylenowej, co pozwala na przyleganie elastycznego wypełniacza wyłącznie do przeciwległych krawędzi płyt CSP oraz równomierne rozłożenie obciążenia na wypełniacz.
Zamknięta szczelina dylatacyjna z elastyczną masą uszczelniającą i wkładką z taśmy polietylenowej
Zalecane uszczelniacze do wypełniania szczelin
Producent | Nazwa |
| Den Braven | S-T 5 |
| Mapei | Mapeflex AC4 |
| Botament | Botact A4 |
| Den Braven | Den Braven Pyrocryl |
| Henkel | Henkel – akrylat budowlany |
Prace tynkarskie
Prace tynkarskie na płytach cementowo-włóknowych wykonuje się z otwartą spoiną oraz z zamkniętą spoiną za pomocą systemu wykończeniowego lub listew maskujących.
Prace tynkarskie wykonuje się, gdy powierzchnia z płyt ma wyglądać na monolityczną i gładką, bez widocznych spoin dylatacyjnych. Jak wiadomo, zmiana wilgotności względnej powoduje wydłużenie lub kurczenie się płyt cementowo-włóknowych. Aby te zmiany nie prowadziły do powstawania pęknięć powierzchniowych, należy:
- Przymocować do konstrukcji wcześniej zagruntowane płyty;
- Wypełnić powstałe spoiny dylatacyjne elastycznym uszczelniaczem;
- Wykonać szpachlowanie powierzchni roboczej;
- Wcisnąć w powstałą warstwę pokrycia siatkę szklano-alkalioodporną;
- Nałożyć wyrównującą warstwę szpachli;
- Wykonać wykończenie powierzchni.
Tapetowanie
Do tapetowania należy :
Wypełnić spoiny dylatacyjne elastycznym uszczelniaczem;
Nałożyć na powierzchnię płyty cementowo-włóknowej klej do tapet (pozostawić do całkowitego wyschnięcia);
Tapetowanie przeprowadzić zgodnie z instrukcją dołączoną do kleju.
Okładzina płytami ceramicznymi lub kamieniem dekoracyjnym na płycie cementowo-włóknowej
Zaleca się, aby szwy dylatacyjne między płytami były wyrównane z szwami płytek ceramicznych i kamienia dekoracyjnego.
W pomieszczeniach z niedostateczną wentylacją, dla konstrukcji narażonych na stałe obciążenie wodne (łazienka, prysznic), należy stosować wcześniej zagruntowane płyty cementowo-wiórowe, a następnie nanosić na nie szpachlę hydroizolacyjną.
Склеивание ЦСП
Для прочного соединения, необходимо:
- зачистить поверхность склеиваемых ЦСП и других приклеиваемых материалов;
- нанести на поверхность клей в соответствии с прилагающейся к клею инструкцией;
- плотно сжать склеиваемые плиты или приклеиваемые элементы к плите, зафиксировать детали и оставить в таком положении до полного отвердения клея.
Для склеивания ЦСП и приклеивания к ним деталей рекомендуют использовать ПУР клей 501 фирмы Клейберит (PUR leim 501 Kleiberit) – влагоотверждаемый однокомпонентный клей на основе полиуретана.
Podczas montażu zaleca się cięcie płyt cementowo-włóknowych narzędziami z twardymi powierzchniami tnącymi z węglika. Aby uzyskać idealnie wycięte krawędzie, wypukłość tarczy tnącej piły od dolnej strony powinna być minimalna.
Do uzyskania wysokiej jakości obrabianej powierzchni płyt wiórowych związanych z cementem stosuje się narzędzia tnące wykonane z węglika lub tarcze diamentowe.
Szlifowanie narusza górną, delikatną warstwę powłoki, co prowadzi do otwarcia struktury płyty, zwiększenia chłonności wody oraz pogorszenia właściwości fizycznych i mechanicznych.
Po zakończeniu płyty należy zagruntować, aby ustabilizować powierzchnię i zmniejszyć higroskopijność.
wkręt z ostrzami do wykonywania wgłębień w drewnie
wkręt z ostrzami do rozwiercania w metalu
Minimalne wymiary wkrętów i wkrętów samogwintujących stosowanych do mocowania płyt cementowo-włóknowych:
Grubość płyty cementowo-włóknowej, mm | Średnica śrub i wkrętów samogwintujących, mm | |||||||
2,5 | 3 | 3,5 | 4 | 4,5 | 5 | 5,5 | 6 | |
10 | 35 | 40 | 45 | |||||
12 | 40 | 45 | 50 | |||||
16 | 50 | 50 | 55 | 60 | 65 | 70 | ||
20 | – | 60 | 60 | 60 | 65 | 70 | 75 | |
24 | – | 75 | 75 | 75 | 75 | 80 | 85 | |
dla stalowej konstrukcji
dla drewnianej konstrukcji
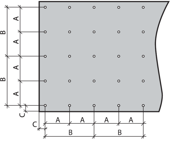
Podstawowym wymaganiem jest zachowanie odstępu między elementami mocującymi oraz odległości między nimi a krawędziami płyt, zgodnie z poniższym schematem i tabelą
Grubość płyty cementowo-włóknowej, mm | Odległość, mm | ||
А (max) | В (max) | С (min) | |
8, 10, 12 | 200 | 400 | 25 |
16, 20, 22 | 300 | 600 | 25 |
24 | 400 | 800 | 25 |
EUROIZOL – dostawca materiałów budowlanych i usług inżynieryjno-budowlanych